Чудо-юдо энд Ко :)

  • Автор темы Автор темы B-veter
  • Дата начала Дата начала
Re: Чудо из сарая :) Вестерн в Инино :) Лего-шелтер?)))

Хнык-хнык, йа этого не виделЬ(((
Но описание живенькое)) На Белочку с Жо, да, любоваццо и любоваццо. Шоп мы так ездили с Марищем, а?)))

С шелтером... Вам ночью гулять? Если нет, я бы, наверное, не особенно им морочилась))
 
Re: Чудо из сарая :) Вестерн в Инино :) Лего-шелтер?)))

Именно что ДНЕМ. Солнце шпарит невыразимо сильно. Просто страшно, что будет, когда начнется жара. Им и так плохо на солнце, а пока только 20 с небольшим... а будет 30???? Как раз ночью мне меньше страшно. Там ну максимум ливень. Хотя и от дождя тож неплохо...
ЗЫ. Судя по фоткам, еще немного, и вы с Марищем будете ездить не хуже :) Хотя, конечно, я только на фотках видела его (к сожалению).
 
Re: Чудо из сарая :) Вестерн в Инино :) Лего-шелтер?)))

Ну, вот не факт, что кони зайдут в шелтер в жару. Очень многие предпочитают плавить мозг на солнышке.

А вот приезжай в гости!))) Ужаснешьси в живую. На фотках-то, да в тырнете, все языком трепать горазды :mrgreen:
 
Re: Чудо из сарая :) Вестерн в Инино :) Лего-шелтер?)))

А вот и приеду и даже с удовольствием :P
Так тут же вопрос... Грубо говоря, если у коня есть возможность уйти в тень, но он стоит на солнце - это одно. А если НЕТ такой возможности - это уже другой расклад....
Опять же, если сделать длинный навес в варианте крыша + 1 стенка затянутая, то точно жарче чем на улице и душнее чем на улице не будет, да и клаустрофобам не страшно.
 
Re: Чудо из сарая :) Вестерн в Инино :) Лего-шелтер?)))

Аня, "крыша и 1 стенка" тень давать будут далеко не всегда. По идее лучше чтобы было 3 стенки и крыша, а 1 длинная стенка была не затянута (вход-выход). Тогда и не зажмет никто никого и смысл есть. НО мой гаврик в шелтер идет только если его мухи достают и НИКОГДА от жары (хотя он ее не любит) или дождя. А затянуть стены можно садовой или строительной пленкой (непрозрачно-зеленой) или брезентом. Только крышу не забудь сделать ПОКАТОЙ!!!

ЗЫ: А к нам вот никтоооо не едет -хныык- :cry!!!:
 
Re: Чудо из сарая :) Вестерн в Инино :) Лего-шелтер?)))

Ань, спасибо большое за комплименты, за поддержку, за морковку с яблочками! (Белка вас с Виктором сразу узнала :)))

Интересно читать твои впечатления от этих соревнований (особенно в свете предыдущих впечатлений от соревнований на Эквиросе :)) Значит, все-таки дело движется в правильную сторону :))

Пара комментариев :)

На самом деле, в трейле только видимая легкость. На самом деле чисто проехать схему сложно, а неправильно выполненный элемент часто ведет за собой неправильный следующий. Например, если вы криво вышли из одного препятствия, то не зайдете ровно по центру на следующее, а это минус. Или если у вас нервный шаг, то вы не подниметесь в спокойный галоп и позадеваете жерди. Ну и т.д. Особенно сейчас уже видно - нужно готовиться именно к трейлу, иначе будет сложно.

Видела австралийское седло, на которое смотрела и облизывалась, облизывалась и смотрела..... (Кстати, интересно, а в вестерне есть требования к седлу? Ну в смысле можно ехать на любом седле, или обязательно вестерн?)

Вообще в правилах написано "ковбойское седло с рожком" :)) На нормальных соревнованиях в Штатах и в Европе никого не видела в австралийках. Кстати говоря, Влада, которую ты видела в австралийке, жутко на нее плевалась :)
 
Re: Чудо из сарая :) Вестерн в Инино :) Лего-шелтер?)))

На крышу, кста, можно постелить фольгированный пенофол. Он будет отражать солнце. Ну и ставить тоже так, чтобы вход был на северной стороне, чтобы солнце внутрь не било. А так... можно попробовать стены сделать из фанеры-osb. Это не самый дешевый вариант (т.е. плита стоит рублей 600, там около 3 м2), зато проще приворачивать и легко снимать. Размер 1.2х2.4, если не ошибаюсь. Т.е. вполне себе встает "от пола до потолка". На шелтер надо 8-9 листов (это тыщ 5-6). Теоретически ей же можно затянуть и крышу. Под крышу фольгированный пенофол фольгой вверх. Ну и углы... Либо уголки металлические, либо брус хотя бы 100х100. Поставить его можно на те же брусья (тупо на землю положить), или на шлакоблоки какие-нить. Ну и привернуть к "фундаменту" на всяк случай. Шоп в Волшебную Страну с конями не улетел :) :) :)
 
Re: Чудо из сарая :) Вестерн в Инино :) Лего-шелтер?)))

Жень, а фанера не промокнет???? По моему она набухает и отваливается если намокает... :shock:

Вот такое можно быстро разобрать и перенести. Это покупное, но можно и самим подобное чудо сварганить...
 
Re: Чудо из сарая :) Вестерн в Инино :) Лего-шелтер?)))

Не, эта фанера считается водостойкой и используется в т.ч. для внешних работ. По крайней мере, видела, ей даж дома снаружи обшивают))))

Но просто досками обшить будет дешевле, да))))
 
Re: Чудо из сарая :) Вестерн в Инино :) Лего-шелтер?)))

Кать, ща попробую выразиться.... На самом деле что лошадь для трейла должна быть выезженной и готовой именно к таким упражнениям - это никто не спорит совершенно, потому как с бухты барахты вот ХОРОШО выезженная лошадь мне кажется только если серпантин сделает и пройдет кавалетти. Ну и скорее всего на ней можно будет переставить ведро и ВОЗМОЖНО открыть калитку, если она будет совсем не пугливой и спокойной как танк. Недовыезженная везде напортачит легко. Но все ж мне кажется, что хорошо выезженная в классику лошадь серпантин на рыси заданного размера сделает. Равно как конкурная лошадь с закрытыми глазами должна уметь ходить кавалетти на всех аллюрах (правда, главное, чтоб она не испугалась нагороженных палок сбоку). К мостику конечно нужно учить. Ворота конечно нужно практиковать, дабы не пугалась. Развороты в квадрате и коридоры на шагу и осаживании естессно работать надо отдельно. Но - все это можно работать независимо от стиля езды (то есть по идее в классике ж лошадь тоже ДОЛЖНА уметь делать тот набор шагов, и которого можно в том числе сложить разворот в квадрате, калитку и перестановку ведра, равно как и должна управляться настолько хорошо, чтобы вписываться в коридоры). Подготовить выезженную лошадь ж в любом случае сложно, что бы она ни делала.
Но дальше вопрос презентации. Тот трейл, который был - там в основном шли связки на шагу. Куда-то там надо было выйти с рыси. Сложных заходов на галопе просто не было. И далее - ну чисто из моего стартового опыта. Я вот обожала подъем в галоп из остановки. Потому что там ты легально можешь встать, и у тебя есть секунды, чтобы мысленно пробежаться по себе, поправить свою посадку, "пообщаться" поводом с коником, подсогнуть его еще стоя в правильную сторону - в общем, подготовиться. Равно как я всегда любила шаг в схемах, потому как на начальном уровне, когда еще нет задачи получить баллы за аллюры, а просто максимально чисто отъехать схему - шаг - это то время, когда ты можешь спокойно успеть поправить стремена, посадку, подготовиться, настроиться с конем друг на друга, в общем, за счет меньшей скорости движения выдохнуть. Короче, сделать все то, что например я с моим уровнем просто не успевала в случае ошибки на галопной и рысистой части, где знаешь, потеряла стремя и хрен бы с ним, мне бы удержать ритм и вписаться б в вольт, и как-то удержать шарахающуюся лошадь на стенке, и срочно зажать дабы отпустить на такой-то букве и изобразить хоть какую-то видимость перехода в среднюю рысь.... В общем, рысь и галоп лично для меня это быстрее, и следовательно это сложнее само по себе, когда ты не столько едешь, сколько стараешься не дать лошади шарахнуться. Плюс лошадь больше заводится. Одно дело, когда он знает, что он должен вдумчиво шагать и сделать буквально одну прямую галопом и там парочку небольших проездов рысью.... А другое когда условно вылетаешь ты на конкурное поле, у тебя есть эти несчастные 40 секунд до старта, и вперед, галопом между барьерами, пытаясь заранее вычленить, от какого лошадь больше всего шарахается и вокруг него успеть вольтик прокрутить... Равно как звуки - конь выдергивает голову посмотреть, что там такое тренькнуло на галопе - ну всем привет, до свидания круг 10 метров (особенно если тренькнуло с неудачной стороны). На шагу - у него свое равновесие куда устойчивей, ну снимут тебе баллы за неповиновение и за "кривую" диагональ, да и фиг с ним. В той схеме, которую я видела - был в основном шаг. Еще и куча возможностей на пару секунд вообще прекратить всякое движение, чтобы настроить лошадь на следующее правильное. В общем, в моем представлении начинать кататься с лошадью на выезды для решения таких задач проще, чем для решения задач допустим пропрыгать те же 80. Хотя конечно можно сразу ехать на простенькие детские езды - в принципе, это проще конкура, хотя для меня было бы сложнее трейла (не настолько я хорошо сижу, чтобы мне не составляло труда заставить пройти лошадь по прямой там, где она хочет свалить в центр поля и начать активно озираться по сторонам, на галопе - а галопных стенок много в любой езде - посшибать палки было бы проще).
 
Re: Чудо из сарая :) Вестерн в Инино :) Лего-шелтер?)))

у нас летом все кони исправно в тенечек прячуться (или навес или деревья)
собственно летом днем и люди тоже исправно от тенечка до тенечка перебежками :mrgreen:
потому как в тенечке +37 ,а на солнышке все +50 :shock:
по опыту жизни в квартире с окнами на юг - фольга рулит 8)

навес как на последнем фото у нас бы наверно сдуло во время шторма
 
Re: Чудо из сарая :) Вестерн в Инино :) Лего-шелтер?)))

О, спасибо за обсуждение шелтера :)
Тут дело вот в чем. Наши крокодилы часто выясняют отношения. Так что одна открытая сторона все ж не совсем выход, т.к. по ТБ нам бы ВООБЩЕ никаких углов. Даже в теории. Можно например длинную стенку и "дальние" от нее пол-коротной стенки закрыть... Чтобы всегда было откуда вылезти....
То есть вот идеально было б вообще стена + навес и ВСЕ. Как-то ориентировать так, чтобы тень под навесом была в самое жаркое время..... Может кстати "стена" + навес в две стороны от нее?....
Вообще затягивать фанерой мы не особо хотели. Хотели сетку, непромокаемую пленку какую-нить непрозрачную наверх... Тут фишка в том, что оно ж должно еще и легкое к разбору \ переносу \ транспортировке, а если туда листов фанеры, это ж скока их надо-то будет..... Получится фургон стройматериалов.... Или нет? Надо подумать....
А чтоб не перевернулась вся эта конструкция при порыве ветра наверное проще не "приворачивать" - тем более как привернуть к земле-то? а наверное проще "выносы" сделать от основания в стороны длинных стенок...
 
Re: Чудо из сарая :) Вестерн в Инино :) Лего-шелтер?)))

Чтобы навес давал тень, он должен быть здоровууущим... опять же, имхо, пленку порвут-погрызут. Если ветер будет сильным, тоже порвет скорее всего... Может, вам оросители газонов поставить?)))) Тень-не тень, но хоть мокрые в жару будут :)
 
Re: Чудо из сарая :) Вестерн в Инино :) Лего-шелтер?)))

Ну насколько здоровущим... По идее ж у нас все ж кони, не слоны.... Надо будет - подойдут вплотную....
Оросители газонов - :mrgreen: Хорошая мысль)))) Но там от водопровода не дотянуться)))))) А жаль, такая могла бы быть картинка)))) Чапо с недовольной рожей - он терпеть не может когда на него поливают - и сверху вода падает)))
ЗЫ. Ну что, я рассказала тем кто со мной не поехал про соревнования)))) Теперь у меня спрашивают, можно ли где-то посмотреть на тренировки этих самых лошадей :mrgreen: :mrgreen: :mrgreen:
 
Re: Чудо из сарая :) Вестерн в Инино :) Лего-шелтер?)))

Просто тень только от крыши, будет перемещатся, в зависимости от солнца. И в полдень, т.е. самую жару, будет крошечной. Т.е, имхо, крыша 6х4 особого эффекта не даст.
 
Re: Чудо из сарая :) Вестерн в Инино :) Лего-шелтер?)))

Iurumi написал(а):
Просто тень только от крыши, будет перемещатся, в зависимости от солнца. И в полдень, т.е. самую жару, будет крошечной. Т.е, имхо, крыша 6х4 особого эффекта не даст.

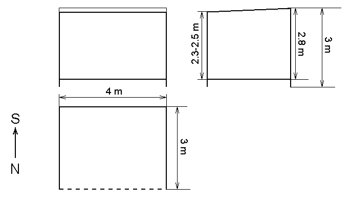
Собственно, изначально идея была такая (см. рис): собрать каркас из стального уголка 40х40, крышу затянуть чем-нибудь водонепоницаемым, 2 стенки - ветро-солнцезащитной тряпочкой/сеткой. Стыки собирать на винтах. Нижние части сделать выступающими вниз сантиметров на 20 и загонять в землю как якорь, чтобы случайным порывом ветра или крокодила не перевернуло.
При установке повернуть входом к северу: крыша + 3 стенки дадут вполне себе неплохую тень (с учетом того, что солнце в наших широтах выше 58 градусов не поднимается :))
 

Вложения

  • idea.GIF
    idea.GIF
    4,6 KB · Просмотры: 760
Re: Чудо из сарая :) Вестерн в Инино :) Лего-шелтер?)))

просто крыша 3х5м дает нормальную тень даже у нас
 
Re: Чудо из сарая :) Вестерн в Инино :) Лего-шелтер?)))

Ой, Жень, а почему не даст??? Мне казалось, что как раз в самом зените солнце светит четко вниз, то есть крыша будет давать тень своей площади примерно.... Нет?
 
Re: Чудо из сарая :) Вестерн в Инино :) Лего-шелтер?)))

Не, если со стенками, будет лучше, да. Вот подумалось о маскировочной сетке. Она и прочная достаточно, и тень даст неплохую. Единственное, тож не самая дешевая штука. И главное, чтобы кони ноги в нее засунуть не придумали.

Ну, не знай, у нас на даче в свое время был натянут тент толи 3х5, толи 4х6. Но именно только крыша, с одной стеной. Единственное, да, тент был обращен "лицом" к югу. Тени особой не было в самую жару - было крошечное пятнышко на стене, и все :roll:
 
Re: Чудо из сарая :) Вестерн в Инино :) Лего-шелтер?)))

Ну вот по идее значит если б стена была с юга, то то пятно тени, которое пришлось на стену, было бы на земле, нет?
Вообще три стены все ж имхо опасно для лошадей, которые могут начать выяснять отношения без повода...
Я для себя возможное расположение стенок (вид сверху) вижу как-то так:
0_6b125_a95f80e_L
 
Сверху